Jahresrückblick 2015
Liebe Mitbürgerinnen und Mitbürger,
schon wieder ist der erste Monat des neuen Jahres Vergangenheit und damit liegt das Jahr 2015 doch schon ein ganzes Stück hinter uns. Trotzdem sei es mir gestattet dieses im heutigen Mitteilungsblatt nochmals kurz Revue passieren zu lassen:
Global gesehen war das Jahr 2015 sicherlich ein spannendes und hoch emotionales Jahr. Im Rückblick überwiegen leider die schrecklichen Nachrichten, die die Welt nachhaltig veränderten.
Mit Schrecken denken wir an die Terroranschläge in unserem Nachbarland Frankreich zurück. Am Freitag, den 13. November erreichte der islamistische Terror in Europa eine neue Stufe. Terroristen, darunter Selbstmordattentäter mit Sprengstoffwesten verübten zeitgleich an mehreren Orten in Paris während des Fußballfreundschaftsspiels zwischen Frankreich und Deutschland Anschläge. Bereits Anfang des Jahres stürmten zwei maskierte Männer die Redaktion der Satirezeitschrift „Charlie Hebdo“ und erschossenen elf Menschen. Weltweit kam es unter dem Motto „Je suis Charlie“ zu Solidaritätsbekundungen.
Am 24. März 2015 zerschellte eine Maschine der deutschen Fluggesellschaft Germanwings in den französischen Alpen. Alle 150 Menschen an Bord kamen ums Leben. Schnell verdichteten sich die Hinweise, dass es sich nicht um einen Unfall handelte. Die Ermittler stellten schließlich fest, dass der Copilot den Absturz absichtlich herbeigeführt hatte.
Als Folge des weltweiten Terrors, der vielen Krisenherde und Kriege suchen immer mehr Menschen Zuflucht, Schutz und Hilfe in unserem Land. Tag für Tag kamen und kommen tausende von Menschen aus den Krisengebieten nach Deutschland, werden in Gemeinschaftsunterkünften untergebracht und warten darauf, Asyl bei uns zu bekommen.
Aus der offiziellen Asylstatistik des Bundes geht hervor, dass im Jahr 2015 rund 1,1 Millionen Menschen in Deutschland angekommen und untergebracht worden sind. Fieberhaft sucht die Politik derzeit nach Lösungen und alle Parteien sind sich einig, dass dieser Zustrom reduziert werden muss.
Allerdings sprechen die nackten Zahlen nach wie vor eine andere Sprache. Umso wichtiger ist es, dass wir vor Ort die uns zugeteilten Aufgaben annehmen und gut bewältigen. Insgesamt haben wir bisher 15 Personen in Schnürpflingen und Beuren aufgenommen. Wir sind der Meinung, dass deren Integration den Umständen und der Herausforderung entsprechend schon sehr gut funktioniert. Zu großen Teilen ist dies unserem Helferkreis zu verdanken. Wir sind sehr glücklich, dass wir auch in Schnürpflingen einen Helferkreis gründen konnten und dass sich über 30 Menschen bereit erklärt haben bei dieser für unsere Gemeinde und unser Land so elementar wichtigen und schwierigen Aufgabe der Betreuung und Integration der Flüchtlinge mitzuwirken. Vielen herzlichen Dank an dieser Stelle nochmals an alle, die sich hierfür engagieren.
Im vergangenen Jahr haben wir uns aber nicht nur um der Betreuung unserer Flüchtlinge gekümmert, sondern vor allem auch in den Ausbau der Betreuung unserer Kinder investiert.
So wurden die Öffnungszeiten in der Kinderkrippe und im Kindergarten verlängert und zusätzliche Betreuungsformen geschaffen. Insgesamt können die Eltern nun zwischen 11 verschiedenen Betreuungsmodellen, welche wir in unserem Kinderhaus anbieten können, auswählen.
Unsere neue „Bücherzelle“ vor dem Kindergarten wurde am 22. Oktober mit einem kleinen Festakt eröffnet. Die „Bücherzelle“ ist ein öffentlich zugänglicher Bücherschrank bzw. eine freie Bibliothek, wo sich jede(r) rund um die Uhr ein Buch ausleihen und / oder eines dazustellen kann. Das Projekt wurde übrigens in Kooperation zwischen der Gemeinde, dem Kindergarten und der Grundschule realisiert.
Getreu dem Motto „selbst ist der Mann (bzw. die Frau)“ haben unsere Gemeinderäte/innen samt Bürgermeister die Zufahrt zur Schule gepflastert.
Die bislang asphaltierte Straße war in einem stark sanierungsbedürftigen Zustand und wurde durch den Neubau des Kindergartens zudem nochmals stark in Mitleidenschaft gezogen. Bei einem Vorort-Termin hat sich der Gemeinderat entschlossen, die Zufahrt in Eigenregie zu pflastern. Insgesamt wurde eine Fläche von 300 m⊃2; mit Pflastersteinen belegt und das Ergebnis kann sich auch wirklich sehen lassen.
Um die Vereinbarkeit von Beruf und Familie weiter zu verbessern bzw. für Alleinerziehende bessere Rahmenbedingungen zu schaffen, haben wir die im Kindergarten angebotene Ganztagesbetreuung nun auch auf die Grundschule ausgedehnt. So können wir nun für die Schulkinder vor- und nachmittags von 7:00 Uhr bis 15:00 Uhr (freitags bis 13:00 Uhr) eine Betreuungsmöglichkeit vor bzw. nach dem Schulunterricht mit Mittagessen und Hausaufgabenbetreuung anbieten. In diesem Zusammenhang wurde für die Räumlichkeiten der Kernzeitbetreuung im Erdgeschoss des Rathauses eine neue Küche beschafft.
Vor den Sommerferien wurde in einem Schulprojekt der Pausenhof der Grundschule von Schülern, Eltern und Lehrern neu gestaltet. Viele Hände halfen mit, die Außenanlagen deutlich aufzuwerten und so unsere Schulanlagen noch attraktiver zu gestalten.
In Kooperation mit dem Musikverein wurde im gleichen Zeitraum der Festplatz begradigt, so dass das Festzelt für das Herbstfest nun optimal Platz findet. In diesem Zusammenhang wurden vom Musikverein Wasser- und Anschlussleitungen im Boden verlegt, so dass aufwändige Installationen für das Herbstfest nun entfallen.
Ein langersehnter Wunsch unserer Feuerwehr wird nun 2016 in Erfüllung gehen. Der Gemeinderat hat in der letzen Sitzung des vergangenen Jahres beschlossen, einen Mannschaftstransportwagen anzuschaffen. Der Auftrag wurde bereits erteilt und wir rechnen mit der Auslieferung im Sommer dieses Jahres. Das ca. 46.000,00 Euro teure neue Fahrzeug soll hauptsächlich bei Dienst- und Versorgungsfahrten, bei Fahrten der Führungsgruppe, für die Jugendarbeit, bei Kleineinsätze aber auch bei Großschadenslagen zum Einsatz kommen. Des Weiteren soll der Mannschaftstransportwagen auch zur Absicherung der Einsatzstelle herangezogen werden und somit dem Eigenschutz der Mannschaft dienen.
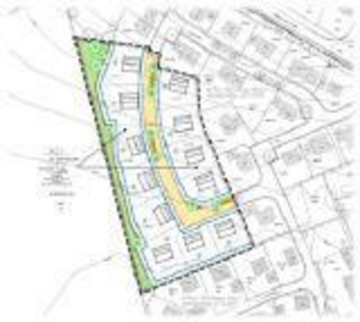
Da nach wie vor eine extrem hohe Nachfrage nach Bauplätzen in Schnürpflingen vorhanden ist, hat der Gemeinderat grünes Licht für die Erschließung des 3. und letzten Bauabschnitts des Baugebiets "Bihalfinger Weg" gegeben. Nach der Realisation der Erschließungsmaßnahme, die übrigens schon an die Fa. Schwall aus Laupheim vergeben wurde, stehen dann weitere 12 attraktive Bauplätze zur Verfügung. Für diese Grundstücke besteht eine umfangreiche Bauplatzbewerberliste.
Des Weiteren wurde ein neues Schilderleitsystem für unsere Gemeinde in Auftrag gegeben. Den Zuschlag erhielt die Fa. Gässler und Nothelfer GmbH aus Dietenheim, die auch die Schilderleitsysteme in Illerrieden, Dietenheim und Staig realisiert hat. Die Planungen befinden sich derzeit in den Endzügen, so dass mit einer Installation der neuen Schilder im Zeitraum Frühjahr/Sommer 2016 zu rechnen ist.
Neben den aufgezählten Ereignissen und Maßnahmen gab es selbstverständlich noch eine Vielzahl weiterer nennenswerter Begebenheiten in unserer Gemeinde. Für viele Höhepunkte sorgten wieder unsere Vereine und sonstige Veranstalter mit ihren Konzerten, Events und Veranstaltungen. Hierfür möchte ich mich im Namen der Bürgerschaft recht herzlich bedanken. Des Weiteren möchte ich mich bei allen Personen bedanken, die durch ihr Wirken, ihre Ratschläge, ihr Zutun oder ihr Zutrauen mit dazu beigetragen haben, die Gemeinde weiterzuentwickeln.
Gerade in den heutigen spannenden, aber vor allem auch schwierigen Zeiten ist es für uns wichtig das Vertrauen und das Zutrauen der Menschen vor Ort zu spüren.
Die statistischen Zahlen aus dem Einwohnermeldeamt
| 2015 | Vorjahr 2014 |
Geburten | 15 | 12 |
Eheschließungen | 14 | 7 |
Sterbefälle | 7 | 5 |
Einwohnerzahl (31.12) | 1339 | 1325 |
Zum Ende meiner Ausführungen möchte ich mich auch noch bei allen Mitarbeiterinnen und Mitarbeitern der Gemeinde bedanken. Durch ihren Einsatz tragen sie dazu bei, die Lebensqualität hier in Schnürpflingen zu erhalten und auszubauen. Besonderer Dank gilt auch meinen Stellvertretern Georg Aubele und Thomas Hertle.
Ein Jahreswechsel bringt auch immer die Möglichkeit mit sich, in unserer hektischen Zeit kurz innezuhalten, um das Vergangene Revue passieren zu lassen. Jeder von uns wird das Jahr aus seiner individuellen Sicht beurteilen und versuchen, das Gute ins neue Jahr mitzunehmen und das weniger Gute hinter sich zu lassen. Dass Ihnen dieses gelingt, wünsche ich Ihnen, liebe Mitbürgerinnen und Mitbürger von Herzen.
Zusätzlich wünsche ich Ihnen allen für das Jahr 2016 viel Erfolg, Gesundheit, Glück, Zufriedenheit und Gottes Segen.
Ihr Michael Knoll
Bürgermeister